Serie E333.32 - Kette für 3 Bewegungsrichtungen
1. Teilbare KMA-Anschlusselemente mit integrierter Zugentlastung
2. Patentiertes Druckknopf-Prinzip
3. Montieren und demontieren an jeder Stelle möglich
4. Kombination von unterschiedlichen Biegeradien und Bewegungsrichtungen
5. Leichtes Befüllen von 2 Seiten "easy chain®"-Prinzip:
einfach das Kabel entlang des Innen- oder Außenradius eindrücken
6. 3-achsige Bewegungen für Maschinen jeder Art
7. Roboter-Anwendungen möglich
8. if-Design-award Gewinner
*Die Biegeradien verdoppeln sich bei montierten e-ketten® der Serie E333
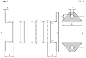
Verfahrweg: S
Teilung: 25 mm
Glieder/m: 40(1000 mm)
Maß E: 20 mm
Ba: 50 mm
Kettenlänge: S/2 + K
K = Zugschlag für Biegeradius bei der e-ketten Längenberechnung in mm
Hinweis: Kettenlänge für die Kettenglieder wird aufgerundet, da es keine halben Glieder gibt.