Serie R6.29 - Rohr, Deckel beidseitig herausnehmbar
1. Geschlossenes E-Rohr - Schutz vor leichten Verschmutzungen, Schweißspänen und Umwelteinflüssen
2. Keine Bolzen und Bohrungverbindung, kaum Abrieb
3. Beliebig verkürz- oder verlängerbar durch modularen Aufbau.
4. Sehr große Gleitflächen
5. Innenliegendes Anschlagsystem
6. Kleine Teilung für leisen, ruhigen Lauf
7. KMA-Anschlußelemente mit "Rundum"-Befestigungsmöglichkeit (Zugentlastung durch separate Kettenkämme möglich)
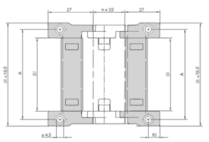
A = Mitnehmer, B = Festpunkt
Teilung: 22 mm
Glieder pro m: 46 Glieder
Verfahrweg: S
Kettenlänge = S/2 + K
K = Zugschlag für Biegeradius bei der e-ketten Längenberechnung in mm
Hinweis: Kettenlänge für die Kettenglieder wird aufgerundet, da es keine halben Glieder gibt.