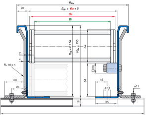
Serie E4.112 - Kette, beidseitig zu öffnen
1. Anschlusselemente
aus Stahl
2. Geräuschdämpfer,
optional –10 dB(A)
3. Gleitflächen,
lange Wege
4. Späneschutz
5. NC ohne
Vorspannung
6. Stabil, hohe Kräfte
durch "Hintergriff"
7. Rastöffnungssteg
mit rückseitiger
Skalierung
8. Gerader Lauf
durch Innen-/
Außenlasche
9. Leiser Lauf durch
eingebaute "Bremse"
A=Mitnehmer, B=Festpunkt
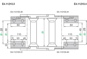
Teilung: 143 mm pro Glied
Glieder pro m: 7
Verfahrweg: S
Kettenlänge = S/2 + K
K = Zugschlag für Biegeradius bei der e-ketten Längenberechnung in mm
Hinweis: Kettenlänge für die Kettenglieder wird aufgerundet, da es keine halben Glieder gibt.